Japanese
Architecture
Design

Global J-Architecture Project by ASJ × Japan Homes
Architect: Keisuke Kawaguchi | Photograph: Nacása & Partners Inc.
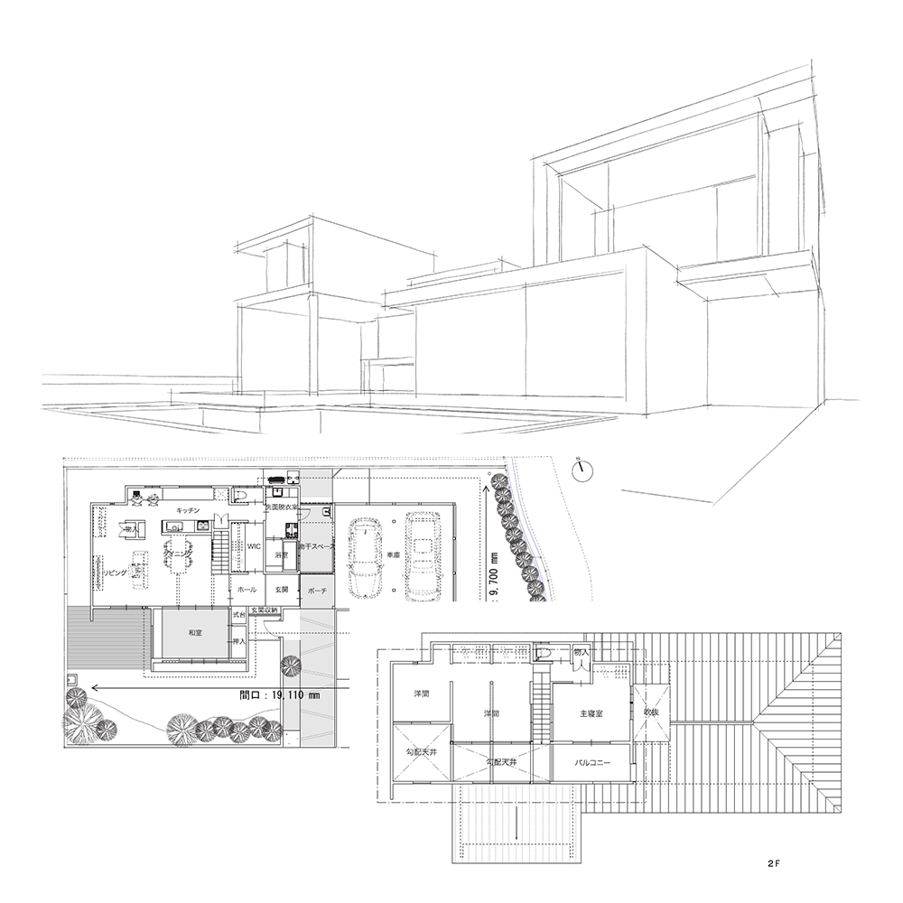
Architect: Eisei Misawa, Tomoko Misawa | Photograph: Kazunori Nomura

We believe engaging architects is key to prospering cities.

ASJ is one of the largest networks of architects in Japan, with approximately 3,000 registered members.

Architects play a vital role in the development of society by improving the quality of life through architecture and creative urban landscapes. Our mission is to help realize sustainable urban environments prosperous lifestyles through the creative use of architecture. We are particularly focused on co-development with local communities to foster an inclusive architectural culture for generations to come.  

Yuhei Maruyama
Architects Studio Japan, inc.

Contact us

0800-00-5055

Architects

We provide a one-stop shop for your architectural needs, from design to construction by connecting you with our architects and local construction companies.

Services

Global J-Architecture Project is a collaborative initiative by ASJ and Japan Homes to deliver high-quality Japanese architecture overseas.

Combining ASJ’s extensive architect network and design expertise with Japan Homes’ local development and construction capabilities, we support residential and lifestyle projects from concept to completion in New Zealand, Australia, and beyond.

Catalogue

PROTO BANK 063

Nagomi-no-ie

PROTO BANK 123

Mori-no-ie

PROTO BANK 128

O.N-tei

PROTO BANK 160

Ina-no-ie

PROTO BANK 204

O.N-tei

Contact Us

*」は必須フィールドを示します

Where do you currently live?*
Which best describes your current situation?*
Approximate construction budget (excluding land)*
What attracted you to ASJ × Japan Homes?*
Copyright © 2026. All Rights Reserved.
Global J-Architecture Project

オンライン

建築家無料相談会

オンライン(ZOOM)にて、建築家がご相談に応じます。
建設予定の敷地やリフォーム検討の物件がある方は、資料(図面や写真等)をご用意ください。多くの難題を解決してきた建築家がお答えします。

<相談事例>

● 建築予定地にどんな建物が出来る?
● リフォームor建て替えどっちが良いだろう?
● 土地購入前の不安解消相談
● 現在検討中のプラン診断 
● これからの土地活用、賃貸住宅、併用住宅
● 建築家と考えるこれからのクリニック

※建設会社決定済の方はご遠慮ください。

年代別
住宅ローン設計と資金計画

年代ごとに最適なローンの組み方や返済計画は大きく異なります。

本セミナーでは、年代別にそれぞれのライフステージに合わせた住宅ローンの組み方と注意点を解説。

『どれくらい借りるべき?』

『変動金利と固定金利、どちらが正解?』

『繰り上げ返済はすべき?』など、

住宅購入を考えるすべての人に役立つ情報をお届けします。

オンライン

建築家無料相談会

オンライン(ZOOM)にて、建築家がご相談に応じます。
建設予定の敷地やリフォーム検討の物件がある方は、資料(図面や写真等)をご用意ください。多くの難題を解決してきた建築家がお答えします。

<相談事例>

● 建築予定地にどんな建物が出来る?
● リフォームor建て替えどっちが良いだろう?
● 土地購入前の不安解消相談
● 現在検討中のプラン診断 
● これからの土地活用、賃貸住宅、併用住宅
● 建築家と考えるこれからのクリニック

※建設会社決定済の方はご遠慮ください。

公開コンペ

2名の建築家によるプレゼンテーション

同一敷地、同一条件で建築家2名によるプレゼンテーション。
それぞれの建築家は何を感じ、考え、提案するのか。
建築家の発想と着眼点、プレゼンテーションの違いをお楽しみください。

(設計条件・キーワード)

● 夫婦2人子供2人の子育世代
● 建物規模 延べ床面積30~32坪
● プライバシーと開放感の両立
● 家で楽しむ(趣味・食・癒しetc.)
● 快適テレワーク

撮影:来田猛
奥村直子・小笹泉
IN STUDIO 一級建築士事務所

・クライアントと土地の個性を深く理解し、他にないオリジナルな住宅を設計します。

・自由を感じ、楽しく、美しい住空間をつくります。

・的確なコスト配分で性能と品質を最適化します。

奥村直子

2010年 京都工芸繊維大学造形工学課程 卒業
2013年 京都工芸繊維大学大学院建築設計学専攻 修了
2013年 山本理顕設計工場 入社
2017年 IN STUDIO 設立
2021年 京都市立芸術大学非常勤講師
2023年 京都芸術大学非常勤講師
経歴
2022年 建築グループ展「Architecture Pass Kyoto」 出展
受賞歴
2020年 LOCAL REPUBLIC AWARD 2020 優秀賞
2022年 伊方町健康交流施設亀ヶ池温泉プロポーザル 上位6選

 

小笹泉

2008年 東京工業大学工学部建築学科 卒業
2011年 東京工業大学理工学研究科建築学専攻(塚本由晴研究室) 修了
2009年 TALLA(メキシコ) 入所
2010年 RyR Arquitectos(メキシコ) 入所
2011年 内藤廣建築設計事務所 入所
2017年 IN STUDIO 設立
2019年 国士舘大学理工学部まちづくり学系 ゼミ講師
2020年 京都精華大学 デザイン学部 建築学科 非常勤講師
2020年 京都芸術大学 芸術学部 通信教育部 建築デザインコース 業務担当非常勤講師
2021年 名古屋造形大学 地域社会圏領域 非常勤講師
2023年 京都芸術大学 芸術学部 通信教育部 建築デザインコース 非常勤講師
経歴
2022年 建築設計の教科書「世界を見る目、建築を考える手 論理的につくる編・体験的につくる編」(共著)
2023年 展覧会ドキュメントブック「Architecture Pass Kyoto」(共著)
受賞歴
2020年 LOCAL REPUBLIC AWARD 2020 優秀賞
2022年 伊方町健康交流施設亀ヶ池温泉プロポーザル 上位6選

吉田立
株式会社スタンダードデザイン

私たちは「テラスのある家づくり」を設計しています。いつでも窓を開け放てる家、伸びやかに広がる空間を必ずご提案します。また、新築だけでなく、リフォームのご提案も積極的に行っております。

略歴
1996年 工学院大学建築学科 卒業
1996年 野村ホーム株式会社 設計部 入社
1999年 株式会社秋田設計 入社
2002年 一級建築士事務所 リツデザイン建築設計事務所 設立
2024年 株式会社スタンダードデザインに法人化
経歴
2014年 これからの住宅をデザインする方法(エクスナレッジ) 田園都市建築家の会・共著
2019年 工学院大学 非常勤講師
受賞歴
2011年 財団法人かながわ住まい・まちづくり協会 バリアフリーリフォームコンクール 審査員特別賞
2011年 TDYスマイルリモデルコンテスト 最優秀賞
2014年 グッドデザイン賞2014
2023年 性能向上リノベーションアワード 選考委員賞

石井大五
石井大五+フューチャースケープ建築設計事務所

同じ面積、同じコストの住宅でも、クライアントが違い、場所が違えば、現れる姿も違って来ます。クライアントのさまざまな要望の中から、いちばん大事な部分を見つけ、他の場所ではない敷地の魅力を引き出すことで、クライアントと場所にふさわしい、唯一無二で、長い時間を生き続ける住宅をつくりたいと考えています。

略歴
1983年 早稲田大学理工学部建築学科 卒業
1985年 早稲田大学理工学研究科建設工学専修課程 修了
1985年 原広司+アトリエ・ファイ建築研究所 入所
1990年 都市・建築計画研究所 入所
1990年 株式会社空間計画VOYAGER 共同で設立
1999年 有限会社フューチャースケープ建築設計事務所 設立
経歴
2004年 21世紀日本のかたち(共著)
受賞歴
2000年 グッドデザイン賞(妻有のコテージ:節黒城キャンプ城コテージC棟)
2001年 北陸建築文化賞(妻有のコテージ:節黒城キャンプ城コテージC棟)
2003年 カナダグリーンデザイン賞(妻有のコテージ:節黒城キャンプ城コテージC棟)
2007年 リフォーム&リニューアルコンテスト優秀賞(JIGSAW)
2008年 東京建築賞(JIGSAW)
2008年 輪島市黒島地区復興まちづくりコンペティション最優秀賞
2012年 住まいの環境デザインアワード(長岡の住宅)
2013年 北陸建築文化賞(長岡の住宅)
2014年 サステナブル住宅賞(長岡の住宅)
2014年 JIA環境建築賞(長岡の住宅)
2015年 A+Architizer賞(トイレの家)
2016年 AACA賞(トイレの家)
2017年 天王通り再生プラン提案設計競技優秀賞
1989年 横浜アーバンデザイン国際設計競技 入選

後藤智揮
後藤組設計室

気兼ねなくつかえる素直な建築や空間を、木にこだわりながら創っています。

略歴
2005年 京都大学工学部建築学科 卒業
2007年 京都大学大学院工学研究科 居住空間学講座 修了
2007年 建築商会 入所
2008年 植本計画デザイン 入所
2013年 株式会社 後藤組設計室 開室
経歴
2022年 東京建築士会主催 環境オンラインセミナーで講演
2021年 東京建築士会主催 環境オンラインセミナーで講演
2019年 東京都板橋区主催 『住まいに関する学習講座』にて講演

藤田征樹
藤田征樹建築設計事務所

風土、自然、伝統、歴史等を受け継いできた建築は誰もが美しく、気持ちよく感じるものであると思います。一方で現在作り出されている建築はこのあたりのことをないがしろにしてきたように思います。私は現代の環境をふまえつつ、過去と未来を繋ぐことが出来る現代の快適で美しい住まいを目指したいと 考えています。

略歴
1991年 新潟大学工学部建築学科 卒業
1991年 菊竹清訓建築設計事務所 入所
1999年 藤田征樹建築設計事務所 設立

筒井紀博
筒井紀博空間工房

その家族、その土地、その時に存在する必然性のある住宅となるよう心がけています。また、住宅では40年、50年と生活します。新築の時が一番美しく、時とともに廃れていくような建築ではなく、人と共に素敵に歳をとる住宅であることが大切だと考えます。笑い皺のたくさんあるご老人達のような住宅が理想ですね

略歴
1995年 日本大学理工学部海洋建築工学科 卒業
1995年 石井和紘建築研究所 入所
1998年 平野智司計画工房 入所
2002年 一級建築士事務所 筒井紀博空間工房 設立
2016年 日本大学理工学部海洋建築工学科 非常勤講師

撮影:撮影:中村写真工房 中村大輔
木村哲矢
木村哲矢建築計画事務所

私は、普通性を高めて行く事により普通より優れた住まいを創り出して行きたいと考えています。そして素材を大切にしたシンプルな生活空間、おおらかにつながり互いの気配を感じられる空間、季節の移り変わりや光の陰影を感じられる空間をつくることを心掛けています。 古民家等の再生も多く手掛けています。

略歴
1982年 京都大学工学部建築学科 卒業
1982年 出江寛建築事務所 入所
1990年 株式会社レンゾ・ピアノ・ビルディング・ワークショップ・ジャパン 入社
1994年 木村哲矢建築計画事務所 設立
1995年 宝塚造形芸術大学 非常勤講師(〜2004年)
1996年 大阪工業大学短期大学部 非常勤講師(〜2006年)
1998年 大阪産業大学 非常勤講師
2011年 京都女子大学 非常勤講師(〜2014年)
経歴
2015年 テレビ朝日系「大改造!! 劇的ビフォーアフター」出演
受賞歴
1997年 “weekend theater”(兵庫県企業庁主催:播磨科学公園都市近未来戸建住宅デザインコンペティション,佳作)
1999年 「みどりの健康住宅」設計競技(高齢化対応定住型)(岐阜県主催:入選)
1999年 「ふるさとの木で住宅を」おおさか型モデル展示住宅設計コンペ(河内長野市森林組合主催:佳作)

撮影:tololo studio
吉村真基
吉村真基建築計画事務所

略歴
1998年 早稲田大学理工学部建築学科 卒業
2000年 早稲田大学大学院修士課程石山修武研究室 修了
2000年 FOBA 所員
2005年 D.I.G Architects共同 設立
2018年 吉村真基建築計画事務所 設立

受賞歴
2006年 SDレビュー2006 鹿島賞
2008年 SDレビュー2008 SD賞
2010年 第17回愛知まちなみ建築賞 受賞(M HOUSE)
2012年 第44回中部建築賞 受賞(K HOUSE)
2014年 松阪市新健康センター公開設計競技佳作
2014年 (仮称)太田駅北口駅前文化交流施設設計プロポーザル ファイナリスト